Наши готовые проекты

1

1

Тип фундамента: ленточный / свайно-ростверковый / монолитная плита

Стены: газобетон D-400; 
Балки перекрытия с утеплением

Кровля: двухскатная, металлочерепица

Двери с терморазрывом, ПВХ окна

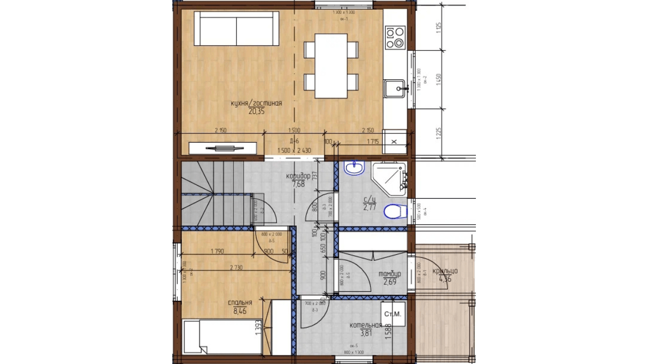
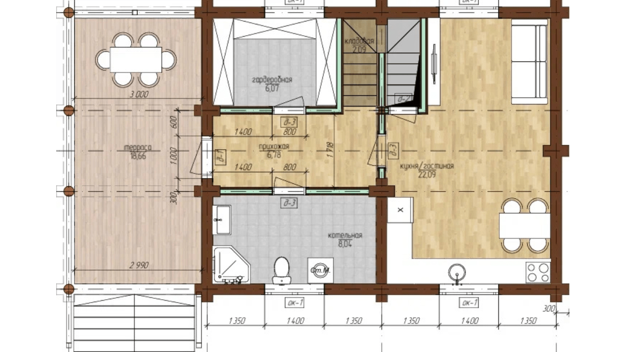
Площадь 82 м²: кухня-гостиная, 3 спальни, котельная, тамбур, крыльцо, терраса
1

1

Тип фундамента: ленточный / свайно-ростверковый / монолитная плита;
Отмостка;
Септик, скважина

Стены: газобетон D-400, облицовочный кирпич; 
Балки перекрытия с утеплением

Кровля: двухскатная, металлочерепица, подшива, водосточная система, снегозадержатели

Двери с терморазрывом, ПВХ окна

Площадь 82 м²: кухня-гостиная, 3 спальни, котельная, тамбур, крыльцо, терраса
2

2

Тип фундамента: ленточный / свайно-ростверковый / монолитная плита

Стены: газобетон D-400; 
Плиты перекрытия

Кровля: вальмовая утепленная, металлочерепица

Двери с терморазрывом, ПВХ окна

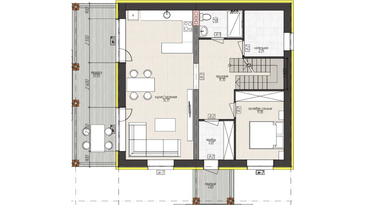
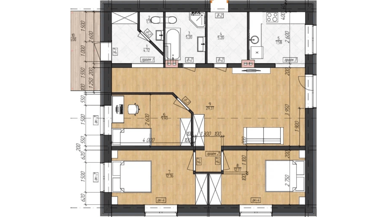
Площадь 117 м²: кухня, гостиная, 3 спальни, котельная, прихожая, крыльцо
2

2

Тип фундамента: ленточный / свайно-ростверковый / монолитная плита;
Отмостка;
Септик, скважина

Стены: газобетон D-400, облицовочный кирпич; 
Плиты перекрытия

Кровля: вальмовая утепленная, металлочерепица, подшива, водосточная система, снегозадержатели

Двери с терморазрывом, ПВХ окна

Площадь 117 м²: кухня, гостиная, 3 спальни, котельная, прихожая, крыльцо
Тип фундамента: ленточный / свайно-ростверковый / монолитная плита

Стены: газобетон D-400; 
Межэтажные плиты перекрытия

Кровля: двухскатная утепленная, металлочерепица

Двери с терморазрывом, ПВХ окна

Площадь 140 м²: кухня-гостиная, 3 спальни, кабинет, котельная, гардероб, прихожая, тамбур, крыльцо
Тип фундамента: ленточный / свайно-ростверковый / монолитная плита;
Отмостка;
Септик, скважина


Стены: газобетон D-400, облицовочный кирпич; Межэтажные плиты перекрытия

Кровля: двухскатная утепленная, металлочерепица, подшива, водосточная система, снегозадержатели

Двери с терморазрывом, ПВХ окна

Площадь 140 м²: кухня-гостиная, 3 спальни, кабинет, котельная, гардероб, прихожая, тамбур, крыльцо
Тип фундамента: ленточный / свайно-ростверковый / монолитная плита

Стены: газобетон D-400; 
Межэтажные плиты перекрытия

Кровля: двухскатная утепленная, металлочерепица

Двери с терморазрывом, ПВХ окна

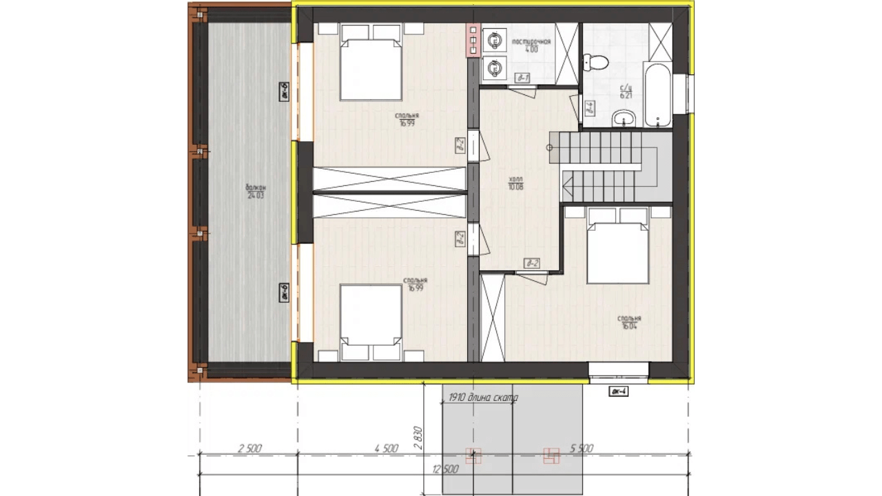
Площадь 199 м²: кухня-гостиная, 4 спальни, котельная, гардероб, постирочная, тамбур
Тип фундамента: ленточный / свайно-ростверковый / монолитная плита;
Отмостка;
Септик, скважина


Стены: газобетон D-400, облицовочный кирпич; Межэтажные плиты перекрытия

Кровля: двухскатная утепленная, металлочерепица, подшива, водосточная система, снегозадержатели

Двери с терморазрывом, ПВХ окна

Площадь 199 м²: кухня-гостиная, 4 спальни, котельная, гардероб, постирочная, терраса, тамбур, крыльцо
Тип фундамента: ленточный / свайно-ростверковый / монолитная плита

Стены: профилированный брус 145х195 мм; 
Балки перекрытия с утеплением

Кровля: двухскатная, металлочерепица

Двери с терморазрывом, ПВХ окна

Площадь 121 м²: кухня, гостиная, 3 спальни, котельная, тамбур
Тип фундамента: ленточный / свайно-ростверковый / монолитная плита;
Отмостка;
Септик, скважина


Стены: профилированный брус 145х195 мм; 
Балки перекрытия с утеплением

Кровля: двухскатная, металлочерепица, подшива, водосточная система, снегозадержатели

Двери с терморазрывом, ПВХ окна

Площадь 121 м²: кухня, гостиная, 3 спальни, котельная, тамбур, крыльцо, терраса
Тип фундамента: ленточный / свайно-ростверковый / монолитная плита

Стены: газобетон D-400; 
Плиты перекрытия

Кровля: двухскатная утепленная, металлочерепица

Двери с терморазрывом, ПВХ окна

Площадь 92 м²: кухня-гостиная, 2 спальни, котельная, гардероб
Тип фундамента: ленточный / свайно-ростверковый / монолитная плита;
Отмостка;
Септик, скважина


Стены: газобетон D-400, облицовочный кирпич; 
Плиты перекрытия

Кровля: двухскатная утепленная, металлочерепица, подшива, водосточная система, снегозадержатели

Двери с терморазрывом, ПВХ окна

Площадь 92 м²: кухня-гостиная, 3 спальни, котельная, гардероб, терраса, крыльцо
Тип фундамента: ленточный / свайно-ростверковый / монолитная плита

Стены: газобетон D-400; 
Балки перекрытия с утеплением

Кровля: двухскатная, металлочерепица

Двери с терморазрывом, ПВХ окна

Площадь 87 м²: кухня-гостиная, 3 спальни, котельная, тамбур, крыльцо
Тип фундамента: ленточный / свайно-ростверковый / монолитная плита;
Отмостка;
Септик, скважина


Стены: газобетон D-400, облицовочный кирпич; 
Балки перекрытия с утеплением

Кровля: двухскатная, металлочерепица, подшива, водосточная система, снегозадержатели

Двери с терморазрывом, ПВХ окна

Площадь 87 м²: кухня-гостиная, 3 спальни, котельная, тамбур, крыльцо
Тип фундамента: ленточный / свайно-ростверковый / монолитная плита

Стены: профилированный брус 145х195 мм; 
Балки перекрытия

Кровля: двухскатная утепленная, металлочерепица

Двери с терморазрывом, ПВХ окна

Площадь 93 м²: кухня-гостиная, 4 спальни, котельная, гардеробная, тамбур, крыльцо
Тип фундамента: ленточный / свайно-ростверковый / монолитная плита;
Отмостка;
Септик, скважина


Стены: профилированный брус 145х195 мм; 
балки перекрытия

Кровля: двухскатная утепленная, металлочерепица, подшива, водосточная система, снегозадержатели

Двери с терморазрывом, ПВХ окна

Площадь 93 м²: кухня-гостиная, 4 спальни, котельная, гардеробная, тамбур, крыльцо
Тип фундамента: ленточный / свайно-ростверковый / монолитная плита

Стены: газобетон D-400; 
Плиты перекрытия

Кровля: двухскатная утепленная, металлочерепица

Двери с терморазрывом, ПВХ окна

Площадь 148 м²: кухня-гостиная, 3 спальни, котельная, гардероб, кладовая
Тип фундамента: ленточный / свайно-ростверковый / монолитная плита;
Отмостка;
Септик, скважина


Стены: газобетон D-400, облицовочный кирпич; 
Плиты перекрытия

Кровля: двухскатная утепленная, металлочерепица, подшива, водосточная система, снегозадержатели

Двери с терморазрывом, ПВХ окна

Площадь 148 м²: кухня-гостиная, 3 спальни, котельная, гардероб, кладовая, терраса, крыльцо
Тип фундамента: ленточный / свайно-ростверковый / монолитная плита

Стены: оцилиндрованное бревно 24 см; 
Балки перекрытия

Кровля: двухскатная утепленная, металлочерепица

Двери с терморазрывом, ПВХ окна

Площадь 114 м²: кухня-гостиная, 3 спальни, парная, раздевалка, терраса, балкон
Тип фундамента: ленточный / свайно-ростверковый / монолитная плита;
Отмостка;
Септик, скважина


Стены: оцилиндрованное бревно 24 см; 
балки перекрытия

Кровля: двухскатная утепленная, металлочерепица, подшива, водосточная система, снегозадержатели

Двери с терморазрывом, ПВХ окна

Площадь 114 м²: кухня-гостиная, 3 спальни, парная, раздевалка, терраса, балкон
Тип фундамента: ленточный / свайно-ростверковый / монолитная плита

Стены: газобетон D-400; 
Балки перекрытия, утепление

Кровля: вальмовая, металлочерепица

Двери с терморазрывом, ПВХ окна

Площадь 148 м²: кухня, гостиная, 3 спальни, котельная, крыльцо
Тип фундамента: ленточный / свайно-ростверковый / монолитная плита;
Отмостка;
Септик, скважина


Стены: газобетон D-400, облицовочный кирпич; 
Балки перекрытия, утепление

Кровля: вальмовая, металлочерепица, подшива, водосточная система, снегозадержатели

Двери с терморазрывом, ПВХ окна

Площадь 148 м²: кухня, гостиная, 3 спальни, котельная, крыльцо
Тип фундамента: ленточный / свайно-ростверковый / монолитная плита

Стены: профилированный брус 145х195 мм; 
Балки перекрытия, утепление


Кровля: двухскатная, металлочерепица

Двери с терморазрывом, ПВХ окна

Площадь 61 м2: кухня-гостиная, 1 спальня, парная, крыльцо
Тип фундамента: ленточный / свайно-ростверковый / монолитная плита;
Отмостка;
Септик, скважина


Стены: профилированный брус 145х195 мм; 
балки перекрытия, утепление


Кровля: двухскатная, металлочерепица, подшива, водосточная система, снегозадержатели

Двери с терморазрывом, ПВХ окна

Площадь 61 м2: кухня-гостиная, 1 спальня, парная, крыльцо
Тип фундамента: ленточный / свайно-ростверковый / монолитная плита

Стены: профилированный брус 195х145 мм; 
Балки перекрытия

Кровля: двухскатная утепленная, металлочерепица

Двери с терморазрывом, ПВХ окна

Площадь 208 м²: кухня-гостиная, 3 спальни, парная, раздевалка, терраса, балкон
Тип фундамента: ленточный / свайно-ростверковый / монолитная плита;
Отмостка;
Септик, скважина


Стены: профилированный брус 195х145 мм; 
балки перекрытия

Кровля: двухскатная утепленная, металлочерепица, подшива, водосточная система, снегозадержатели

Двери с терморазрывом, ПВХ окна

Площадь 208 м²: кухня-гостиная, 3 спальни, парная, раздевалка, терраса, балкон
Тип фундамента: ленточный / свайно-ростверковый / монолитная плита

Стены: оцилиндрованное бревно 24 см; 
Балки перекрытия

Кровля: двухскатная утепленная, металлочерепица

Двери с терморазрывом, ПВХ окна

Площадь 106 м²: кухня-гостиная, 2 спальни, котельная, гардеробная, кладовая, тамбур, терраса
Тип фундамента: ленточный / свайно-ростверковый / монолитная плита;
Отмостка;
Септик, скважина


Стены: оцилиндрованное бревно 24 см; 
балки перекрытия

Кровля: двухскатная утепленная, металлочерепица, подшива, водосточная система, снегозадержатели

Двери с терморазрывом, ПВХ окна

Площадь 106 м²: кухня-гостиная, 2 спальни, котельная, гардеробная, кладовая, тамбур, терраса
Оформить заявку
Благодарим за доверие!
Мы уже получили ваше обращение и скоро с вами свяжемся
0%
Что хотите построить?
Какой материал вам ближе?
Уже знаете, какой фундамент нужен?
Сколько этажей планируете?
Какая площадь дома вас интересует?
На каком этапе вы сейчас?
Где находится участок?
Когда планируете начать строительство?
Как планируете оплачивать строительство?
Какой у вас ориентировочный бюджет?
Какой материал вам ближе?
Уже знаете, какой фундамент нужен?
Сколько этажей планируете?
Какая площадь бани вас интересует?
На каком этапе вы сейчас?
Где находится участок?
Когда планируете начать строительство?
Как планируете оплачивать строительство?
Какой у вас ориентировочный бюджет?
Как вам удобно связаться?
Оставьте ваш номер телефона
Укажите ваш E-mail
Отправка формы
Подтвердите, что вы не робот
или нажмите Enter
ГОТОВО!
Благодарим Вас за Заявку!
Мы свяжемся с Вами в ближайшее время!
Logo
  • О нас
  • Выбери проект
  • Видео
  • Ипотека
  • Контакты
Загрузка...